VILLA R
TREVIGLIO (BG)
2025
VILLA R
TREVIGLIO (BG)
2025
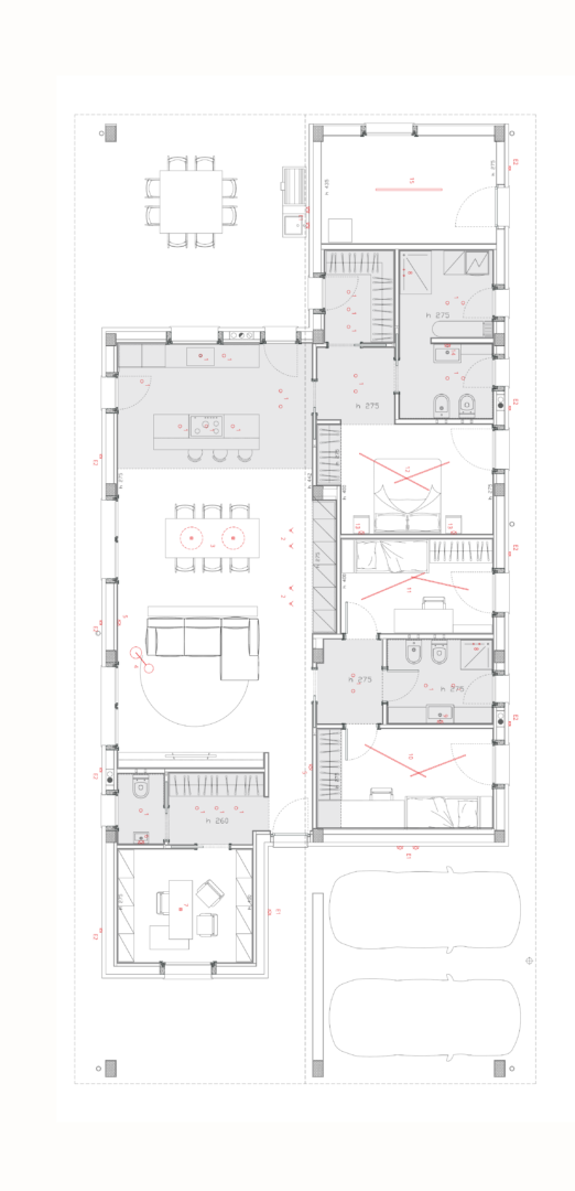
Progetto e realizzazione di una nuova villa unifamiliare a Treviglio con giardino privato: Il progetto nasce dalla volontà di mantenere uno sviluppo disteso e orizzontale, in armonia con le linee dominanti della pianura. La forma esterna segue la distribuzione interna: da un lato, l’ampia zona giorno con bagno annesso e un piccolo ufficio; dall’altro, la zona notte, funzionale e raccolta, pensata per garantire maggiore privacy. L’ampio tetto a falde caratterizza l’architettura e genera due grandi logge coperte.
Commitente: Privato
Progettisti: Okam Studio
Progetto strutturale: Ing. Mirko Sesini
Progetto impianti: Studio Locatelli
Opere edili: Rozzoni s.r.l.
Luogo: Treviglio (BG)
Progettisti: Okam Studio
Progetto strutturale: Ing. Mirko Sesini
Progetto impianti: Studio Locatelli
Opere edili: Rozzoni s.r.l.
Luogo: Treviglio (BG)